How we Created a Serene and Cosy Coastal Bedroom

Coastal bedroom in North Wales with mint green and pink colour scheme

There’s something instantly calming about coastal decor – think soft, sun-bleached tones and natural textures that evoke breezy beach days and slow, sun-soaked mornings. Whether you live by the sea or you just want to be reminded of it, bringing the coastal look to your bedroom can create a serene, laid-back space - a bit of an escape from everyday life. In this post, I’m sharing the final reveal of the master bedroom at my North Wales coastal home project, with lots of tips for creating a modern coastal bedroom that feels fresh and inviting, without being cliche.

Before picture of bedroom
Before picture of bedroom

This house means such a lot to me and my family - it belonged to my nanan and grandad for over 50 years and it holds so many memories. My mum and dad now own it so we use it for short stays as a family and it's also available to rent on AirBnb. The bedrooms were all feeling very tired and the whole flow of the upstairs wasn't working. The master bedroom needed an injection of personality to transform it into a tranquil, cosy space where we could relax and unwind. It also needed to be sympathetic to the 1950s era of the house.

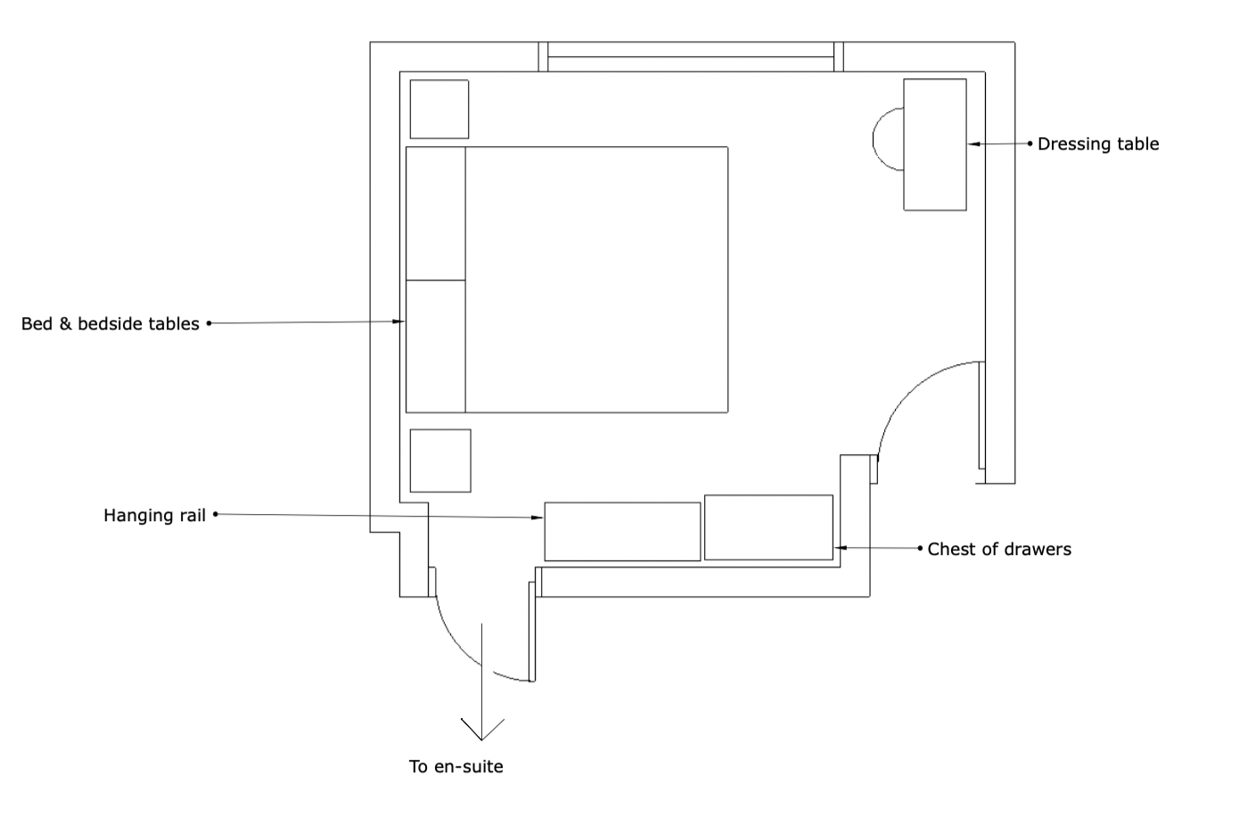
The Furniture Layout

Bedroom layout plan

We separated the main bathroom in two in order to give this bedroom its own en-suite so I recommended positioning the bed on the long wall - there was just enough space for a bedside table each side. Because it's only used for short stays, it doesn't need massive amounts of clothes storage so instead of a wardrobe, I recommended a hanging rail to save space and create a more open feel (this is also a great way to incorporate clothes storage in a guest bedroom). A chest of drawers would provide extra clothes storage and a dressing table would fit perfectly on the wall opposite the bed.

And now here's the finished space with lots of tips for creating the perfect coastal bedroom!

Choose a soft colour palette

Design board

The interior design board

I wanted to create a coastal look, but not in a predictable, Hamptons way — no white walls or red-and-blue stripes. It needed to feel relaxed and breezy and it needed to flow seamlessly with the rest of the house. This home doesn't have the original features of a period home - no deep skirtings, ornate cornices or old fireplace as a focal point - so we needed to add character to bring it to life. I recommended using tongue and groove panelling to the bottom of the walls for visual interest and a bit of a beachy vibe, with a patterned wallpaper above it, wrapped around the entire room to add personality. 

Rattan lightshade with mint green and copper wallpaper

The palette actually started with the wallpaper. Minimoderns specialise in mid-century inspired prints and they're my go-to brand for this style of decor! Their Starling wallpaper in Pale Verdigris & Copper ties in beautifully with the rest of the house and its soft seafoam hue adds a gentle, coastal feel without being too obvious. We wanted to stay away from bright colours so I paired the mint green with pastel pink accents for a fresh feel, and then we softened the look with the grey tones in the bed frame. The perfect soft palette for modern coastal style.

Interior design West Yorkshire

Black accents are especially important with pastel colour schemes because they prevent the space from feeling washed out. The old Colwyn Bay postcards are eBay finds and are displayed in hanging frames above the bed - a really easy way of adding more personality to the space without spending a lot.

Add natural elements

Mint green and copper wallpaper in bedroom

Wood, rattan or cane furniture and decorative accents add so much warmth and texture so they're a must have in a coastal bedroom design. From the cane pendant light and rattan bedside tables to the light woods of the grooved chest of drawers and dressing table, those soft, natural tones are echoed throughout the space.

Rattan pendant light

See how the copper starlings shimmer in the natural light? The perfect spot to relax and unwind.

Use lots of texture

The secret to making coastal interiors feel cosy is layering natural textures. I'm a massive fan of linen bedding — there's nothing quite like it for softness and texture (and I love the slightly crumpled look so no need for ironing!). We added a soft grey throw and a couple of woven cushions to complete the look.

Coastal bedroom design by UK interior designer

At the bedroom windows, we used blackout roller blinds for practicality and a clean, unobtrusive look, but added affordable sheer curtains for lots of softness. Underfoot, the Nordic Berber carpet from Carpetright add warmth and comfort, and its sandy tones suit the coastal design.

En-suite coastal bathroom

The pink and mint green colour palette from the bedroom is carried through to the new en-suite.

This room has been completely transformed from a tired, dated space into a calm and characterful coastal retreat. If you love the look, I’ve written a blog post all about the best coastal wallpaper designs that I’ve come across.

And if you’d like to see more from this coastal home project, don’t miss the bedroom with the ombre wall — it’s a different look, but feels just as calming.

I hope this post has given you plenty of inspiration and coastal bedroom decor ideas to try in your own home. What do you think? Let me know in the comments!

I’m an interior designer providing on-site services in the West Yorkshire area and online design packages throughout the UK. If you want to refresh your bedroom and need some help, please get in touch!

PIN FOR LATER

Previous
Previous

Dark Green Boy’s Room - Final Reveal

Next
Next

Edwardian Semi Hallway - Final Reveal